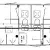
Beschreibung
Dusch/WC-Anhänger COMBI mit Gasheizung, mit 8 Duschen, und 2 Toiletten mieten
- Kapazität: ca. 48 Bäder pro Stunde
- Kapazität: mit Zelt. 200 Besuche pro Stunde
- Maße: H. 300, B. 250, L. 730 cm.
- Elektrischer Anschluss: 230V 16A CEE-Stecker
- Wasseranschluss: 3/4″ Nito-Kupplung
- Abfluss: Ø110
- Gasheizer: 24 kW Verbrauch max. 2 kg Gas pro Stunde 2 x 11 kg. Gasflaschen mit automatischem Gasflaschenwechsler
- Gesamtgewicht: 2.000 kg.
- Zugkraft der Kugeln: 50 mm
Produktbeschreibung:
Der Dusch/WC-Anhänger COMBI mit Gasheizung, hat 8 Duschen, in 2 × 4 aufgeteilt, und Licht. Unter anderem kommt es mit Elektroheizung, 4 Waschbecken, 2 Toiletten mit Wasserspülung, Damen-Sanitär-Entsorgungsbeutel, Spiegel, Sitbänken und Toilettenpapierhalter.
Finden Sie auch weitere Dusch/WC Combi oder Duschanhänger Modelle hier.
Inkl.. 25 m. Stromkabel 230V/16A und Wasserschlauch














